Renovating a home can be an exciting opportunity to improve how a house functions, bring in more light, and create spaces that better support the way a family lives. But it is also a complex process involving many decisions, consultants, regulations, and financial considerations.
Over the years, we have seen that the success of a renovation often depends on the decisions made before construction even begins.
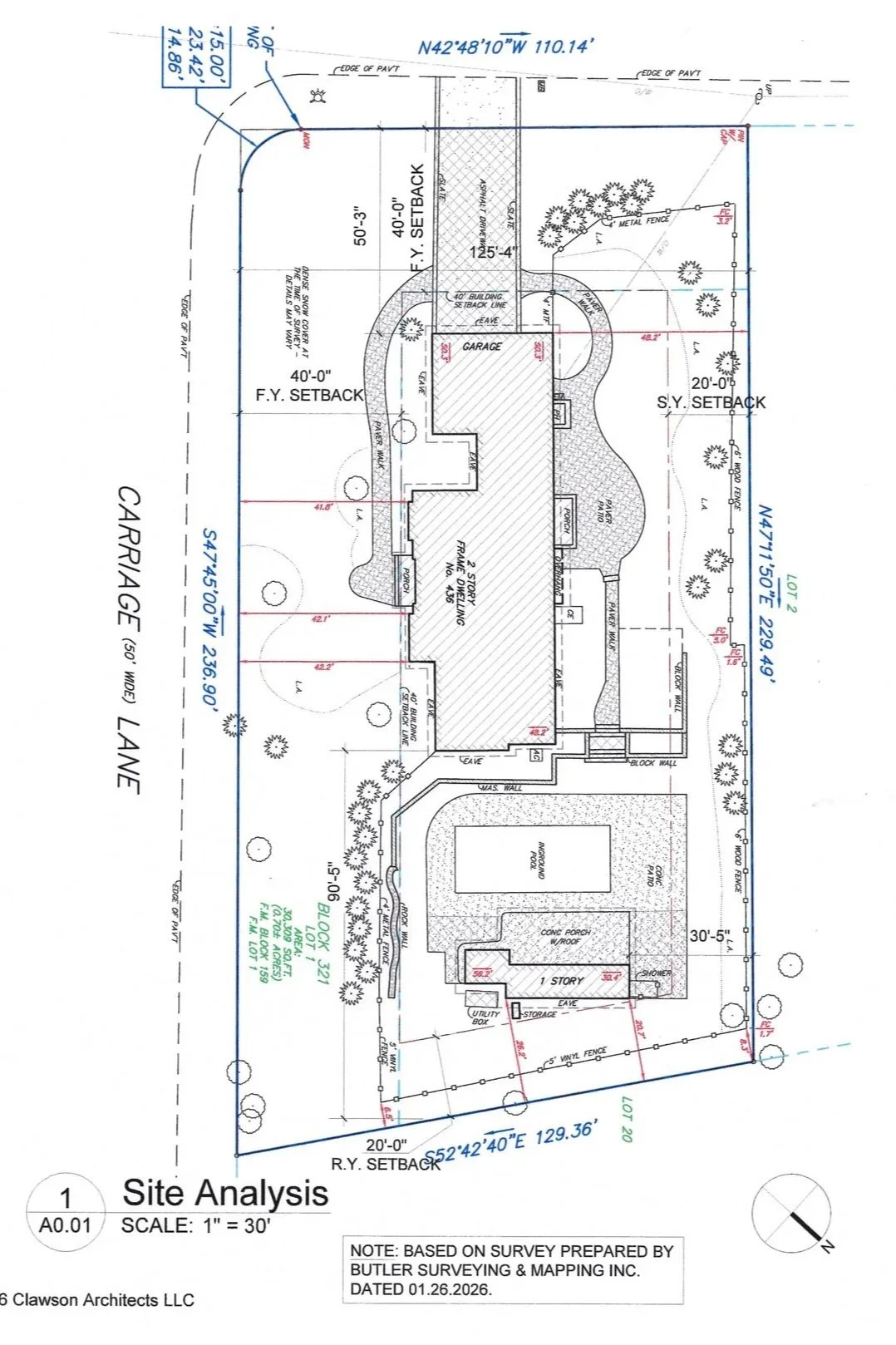
A site analysis to determine the set backs, building coverage, lot coverage, easements, views and more.
Solar study to align the spaces in the home with circadian rhythms and maximize natural light.
Homeowners who approach the process thoughtfully tend to achieve the best results. Those who move too quickly or make assumptions early on often encounter unnecessary challenges.
Below are ten of the most common mistakes homeowners make when renovating a home—and how thoughtful planning can help avoid them.
1. Starting With a Solution Instead of the Problem
One of the most common starting points we hear is:
"We want to knock down a wall and blow out the back of the house."
While that may ultimately be part of the design, it is usually a solution rather than the problem itself.
Often the real issue may be poor circulation, lack of natural light, or a kitchen that does not function well. When homeowners start with the underlying problem instead of a predetermined solution, the design process often reveals better and more efficient possibilities.
Good architecture begins by asking the right questions.
Diagraming the project and establishing the winter and summer solar angles to achieve the most natural light.
2. Waiting Too Long to Hire an Architect
Many homeowners assume they should contact an architect after they have already worked out the idea for their renovation.
In reality, architects often provide the greatest value early in the process. Early collaboration allows the architect to evaluate the house, understand the goals of the homeowner, and explore design strategies before major decisions are made.
This early thinking can lead to better solutions and help avoid costly redesign later.
3. Assuming Architects Are Just Draftsmen
Another common misconception is that architects simply draw plans for a project someone else has already designed.
Architects are licensed professionals trained to analyze problems and develop design solutions that balance function, beauty, and regulatory requirements.
At Clawson Architects, we approach each project as a consultative professional service, working with homeowners to understand the constraints and opportunities of their home before developing a design strategy.
Architects understand space three dimensionally. They can conceptualize what is not there. They can sketch it out as a way of communicating the idea. Then they work to refine it and ultimately do technical drawings for the builders.
4. Separating Architecture and Interior Design
In many projects, architecture and interior design are treated as separate processes.
However, the most successful homes often result when these decisions are considered together from the beginning. Kitchens, bathrooms, cabinetry, circulation, and spatial relationships are all part of the architectural design.
At Clawson Architects, architecture and interiors are considered together to ensure that the home feels cohesive—from exterior proportions to interior spaces. When it comes to procuring your furnishings or bringing your own interior designer to the project, we recommend that they are included right from the beginning so that the home has a cohesive look and feel and you are not changing the design in the field to accommodate features that were never discussed before and the finished project is completely integrated.
The interior furniture layout will inform the windows and doors.
It is important to show furniture as it implies scale, use and circulation in the room.
5. Underestimating Zoning and Regulatory Constraints
Every town has zoning regulations that affect what can be built on a property.
These rules may govern:
building setbacks
lot coverage
height limits
floor area ratios
historic district considerations
Understanding these constraints early is critical. An experienced architect helps navigate these regulations and ensures the design aligns with what is allowed.
6. Focusing Only on Square Footage
Many homeowners assume the solution to a problem is simply adding more space.
While additions can certainly be valuable, thoughtful design often reveals opportunities to improve how existing space is organized and used.
In some cases, better circulation, improved natural light, or rethinking how rooms connect can transform a home without dramatically increasing its size.
7. Making Decisions Too Late in the Process
A renovation project involves many decisions—from layout and structure to materials, fixtures, and finishes.
When these decisions are made too late, they can create delays or force changes during construction. Developing a clear design strategy early helps create a smoother building process.
Under standing the the use and furniture layout assists in creating functional design over just adding space.
8. Choosing Consultants Based Only on Price
Renovation projects involve significant investments, and it is natural to want to control costs.
However, choosing architects, consultants, or contractors based solely on the lowest fee can sometimes lead to challenges later in the project.
Experience, communication, and thoughtful design guidance often prove far more valuable than simply selecting the lowest proposal.
9. Not Fully Understanding the Construction Budget
Construction costs can vary widely depending on the scope and complexity of the project.
A well-developed architectural design helps homeowners understand the scope of work clearly so that contractors can provide accurate pricing.
Without clear drawings and documentation, estimates can vary significantly and lead to uncertainty during construction.
10. Rushing the Design Process
Perhaps the most important step in any renovation is the design process itself.
Taking the time to explore ideas, understand the house, and evaluate different possibilities allows the project to develop thoughtfully.
Once construction begins, changes become far more difficult and expensive.
Investing time in the design phase almost always leads to better results.
Thoughtful Planning Leads to Better Homes
A successful renovation is not simply about making a house larger or more modern. It is about creating spaces that function well, feel comfortable, and support the way people live.
Avoiding these common mistakes begins with approaching the process thoughtfully and assembling the right team early.
This is a preliminary sketch. You may be able to get a ballpark price, but there is much more that needs to be figured out. This project will require skilled craftsmen, structural engineers and landscape architects.
At Clawson Architects, we work with homeowners throughout New Jersey and the NY Metro Area as well Vermont, Rhode Island, Maryland, Florida and Pennsylvania to evaluate their homes, understand their goals, and develop architectural solutions that improve how their spaces function and feel.
Thinking about building new or renovating your home?
If you are beginning to explore ideas for a renovation, addition, or new home, an early conversation with an architect can help clarify possibilities before major decisions are made. Starting the conversation early often leads to the best results.
